4 bedroom House - Detached (Available)
Overview
PROJECT FOR MODERNISATION: A substantial family home with considerable potential in a highly sought-after location close to excellent schools and the station. No Chain. Guide Price £900,000-£925,000. (Property Ref: 23HEATHROAD)
Overall Description
This a a substantial detached house, set well back from the road in a good-sized plot, on one of the more sought after roads in Little Heath, popular with professional families because of its proximity to excellent local schools and the ease of commute into London from the station. The property is in need of complete modernisation, but has potential for extension and/or remodelling as others have in the vicinity, subject of course to the usual consents. As such, it offers buyers a rare opportunity to create their dream family home, to their exact needs and tastes, in an excellent location for bringing up young children and teenagers. Currently the property has four bedrooms and a bathroom upstairs, with an entrance hall, two receptions, kitchen, cloakroom and double garage on the ground floor. There is good-sized front garden with private driveway leading to the garage and a rear garden with large patio, central lawn and mature shrubs and trees for privacy. We are selling this lovely family home with no chain and a Guide Price of £900,000-£925,000. If you are looking for a project in a great location, with obvious potential to create something special, then please call us to book in for the Open House on Saturday 14th March from 10am until 11am.
Location
This house sits in a desirable residential area in what was the village of Little Heath and is now towards the edge of the popular commuter town of Potters Bar. The house is just a short walk from the High Street shops along Darkes Lane, one of the two main shopping streets in the town. Potters Bar has a very good range of local shops, supermarkets and other amenities and is also home to some very well regarded schools at all levels including Lochinver House Boys School (directly opposite), Mount Grace (a few minutes walk away) and a choice of schools a short drive away including Dame Alice Owen's School, Stormont School for Girls and Queenswood. It is very convenient for commuters, with Potters Bar mainline station having regular fast trains to Kings Cross and the M25 being just a five to ten minutes drive away. Being towards the edge of town, the house is close to beautiful Hertfordshire countryside, so ideal for active families who love walking and cycling.
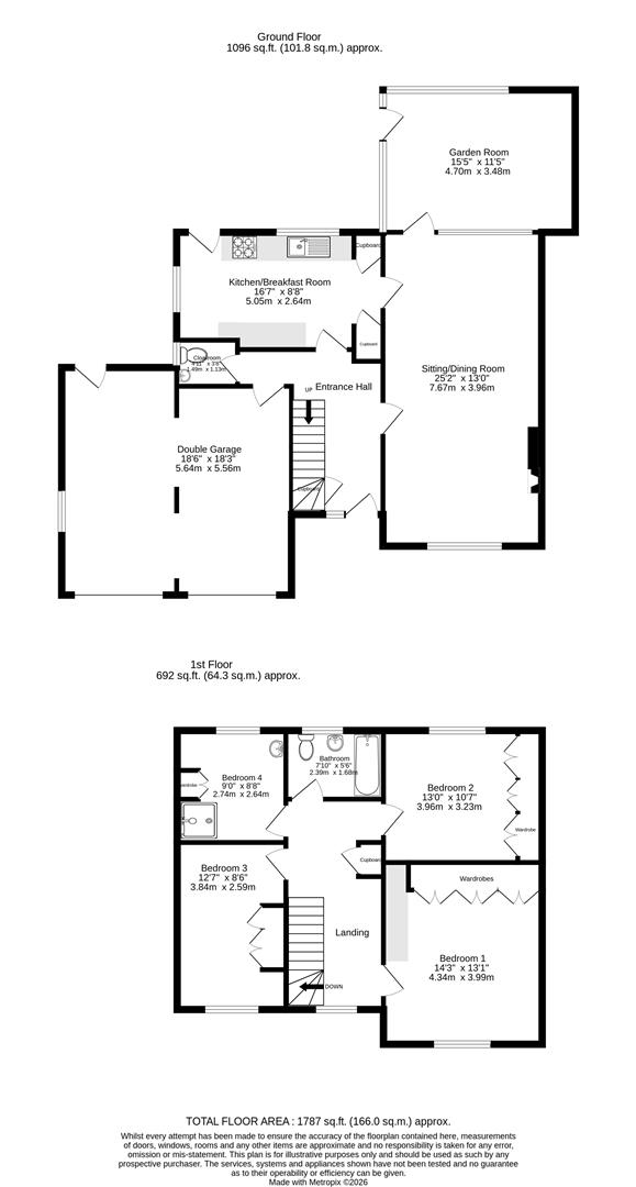
Accommodation
From the driveway the glazed front door leads into the:
Entrance Hall - 4.04m x 2.41m (13'3 x 7'11)Two frosted windows to front. Stairs to first floor. Under-stairs cupboard with alarm control panel. Radiator.
Downstairs Cloakroom - 1.50m x 1.12m (4'11 x 3'8)Frosted window to side. Low-level WC. Wash-hand basin with tiled splash-back. Radiator.
Sitting/Dining Room - 7.67m x 3.96m (25'2 x 13')Window to front. Fireplace with stone surround/hearth and coal-effect gas fire. TV aerial point. Two Radiators. Feature timber/glass wall with door to:
Garden Room - 4.70m x 3.48m (15'5 x 11'5)Glazed timber panels to two sides overlooking the gardens. Feature exposed brick wall. Glazed door to the garden.
Kitchen/Breakfast Room - 5.05m x 2.64m (16'7 x 8'8)Windows to rear and side overlooking the garden. Range of kitchen units with roll-top work surfaces, stainless steel sink and tiled splash-back. Eye-level Neff oven/grill. Bosch gas hob with extractor above. Space for fridge. Space and plumbing for washing-machine and dishwasher. Corner seating. Larder. Storage cupboard. TV aerial point. Radiator. Glazed door to the garden.
Double Garage - 5.64m x 5.56m widest (18'6 x 18'3 widest)Accessed from a door in the entrance hall. Two garage doors to front. Window to side. Wall-mounted Worcester gas-fired "combi" boiler. Electic fuseboard. Gas meter. Space for chest freezer. Garden tap. Glazed door to side.
First Floor - 4.93m x 2.41m (16'2 x 7'11)From the hallway stairs lead up to the landing. Window to front. Deep storage cupboard. Loft hatch.
Bedroom One - 4.34m x 3.99m (14'3 x 13'1)Window to front. Fitted wardrobes, dresser, mirror and cupboards. Radiator.
Bedroom Two - 3.96m x 3.23m (13' x 10'7)Window to rear with pleasant view. Fitted wardrobes, dresser, mirror and cupboards. Radiator.
Bathroom - 2.39m x 1.68m (7'10 x 5'6)Frosted window to rear. Panel bath with shower attachment. Low-level WC. Wash-hand basin. Tiled walls. Radiator.
Bedroom Three - 3.84m x 2.59m (12'7 x 8'6)Window to front. Fitted wardrobe, dresser, mirror and shelving. Radiator.
Bedroom Four - 2.74m x 2.64m (9' x 8'8)Window to rear. Wardrobe with cupboards over. Wash-hand basin. Fitted shower cubicle. Radiator.
Outside
The property has a good-sized front garden with driveway leading down to the double garage. A side gate gives access to the back garden with a large raised patio, central lawn, flowerbeds and mature shrubs and trees for privacy. Garden tap.
Services and Other InformationMains water, drainage, gas and electricity. Gas central-heating (Worcester boiler in garage). TV aerial point. Council Tax Band: G.




























